Скрытая система инсталляции для гипсокартонаAlcaPlastАM101/1000 (Чехия)
Описание товара:
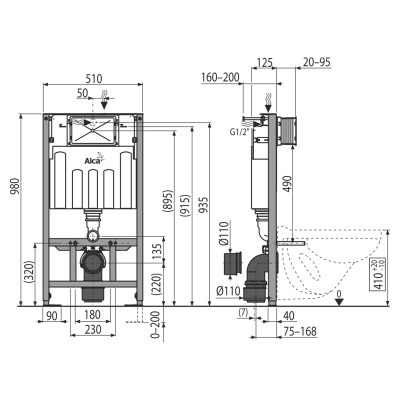
Регулируемые выдвижные ножки в диапазоне 0–200 мм с тормозной системой
Подвижной держатель для стокового колена, устанавливаемый в восьми положениях на расстоянии 0–93 мм
Конструкция рамы позволяет производить монтаж к профилю для гипсокартона, предназначенного для этих целей, или к несущей стене
Установленная система закрывается гипсокартонным листом и не нуждается в дополнительных крепежных элементах
Конструкция полистирольной изоляции предотвращает процесс конденсации на поверхности бачка и ослабляет вибрацию в строительной конструкции
Возможность установки кронштейна с переходом DG 1/2" для подключения сиденья-биде или бидетты
Двойной смыв, независимо регулируемый, с гигиеническим резервом
Подходит для установки пневматического или сенсорного смыва
Совместима со всеми кнопками управления Alcaplast
Возможность сервиса без использования инструментов
Подвод воды сзади/сверху посередине
Бачок сделан из одного фрагмента полипропилена, что обеспечивает его 100% герметичность
Крышка сервисного отверстия упрощает процесс монтажа и защищает от влаги и грязи
Монтажная глубина рукава регулируется в диапазоне 20–95 мм
Монтажная глубина 125 мм
Материал несущей конструкции: металл, обработанный порошковой краской
Область применения:
Для подвесных унитазов
Для монтажа к несущей стене или в гипсокартонную конструкцию
Для пола с толщиной стяжки 0–200 мм
Для установки подвесного унитаза с интервалом крепления 180 мм или 230 мм
Технические параметры:
Подвод воды к задней стенке бачка или сверху бачка осуществляется с помощью монтажных отверстий G1/2 "
Рабочий диапазон давления воды 0,05 – 0,8 MPa
Рекомендуемый диапазон давления воды 0,3 – 0,5 MPa
Большой смыв 6 – 9 l
Малый смыв 2,5 – 3,5 l
Стандартные настройки большого смыва 6 l
Стандартные настройки малого смыва 3 l
Гигиенический резерв 3 l
Объем воды в бачке 9 l
Несущая способность 400 kg
Производитель: Alca plast, s.r.o. Bratislavská 2846690 02 Břeclav Czech Republic (Чехия)
Импортер: ООО "АлцаПласт" Республика Беларусь, Минский р-н, промузел Колядичи, ул.Бабушкина 76, комн.194
Гарантийный срок – 2 года
492.80
- 6 мес. - при заказе от любой суммы

- 3 мес. - при заказе до 500 руб.
- 5 мес. - при заказе от 500 руб. и более

- 10 мес. - максимальная сумма 5000 руб.

- 2 мес. - при заказе до 300 руб.
- 4 мес. - при заказе от 300 до 500 руб.
- 6 мес. - при заказе от 500 руб. и более

- 3 мес. - при заказе от любой суммы
Приобрести все необходимые материалы для ремонта (кроме кирпича, неликвидных и некондиционных товаров) можно в рассрочку
- По картам «Халва» МТБанка,
- «КартаFUN» OOO Сбер Банка,
- По карте "Черепаха"
Подробнее узнавайте по этой ссылке
Мы отвечаем за качество всей продукции, которую Вы приобретаете в фирменной розничной сети "Керамин", и предоставляем гарантийное и послепродажное обслуживание.
Получить консультацию относительно гарантии или оформить возврат товара, можно заполнив форму по этой ссылке
.
Варианты оплаты:
- Наличный расчет в белорусских рублях
- Оплата банковской пластиковой картой через терминал
- Онлайн картой через WebPay (VISA, Mastercard, БЕЛКАРТ)
- Система «Расчет» (ЕРИП)
- Рассрочка
- Кредит
- iPay - оплата с баланса мобильного телефона
- Сервис Оплати
* Города, относящиеся к условиям доставки: Минск, Брест, Витебск, Гомель, Гродно, Могилев, Мозырь и 10 км от административных границ городов.
- Подробная информация по условиям доставки находится по ссылке.
Список сервисных центров обслуживающих предлагаемую продукцию. Подробнее.
- Беларусбанк кредит «На родныя тавары" ( товары отечественного производства, ограничен - смотреть )
процентная ставка – 4%
- Кредит - "Купи со Сбербанком" ( с grace периодом)
процентная ставка - 16,63%
- Кредит - "Купи со Сбербанком (товары отечественного производства)
процентная ставка - 15%
- Описание товара
- Отзывы
-
Описание товара:
Регулируемые выдвижные ножки в диапазоне 0–200 мм с тормозной системой
Подвижной держатель для стокового колена, устанавливаемый в восьми положениях на расстоянии 0–93 мм
Конструкция рамы позволяет производить монтаж к профилю для гипсокартона, предназначенного для этих целей, или к несущей стене
Установленная система закрывается гипсокартонным листом и не нуждается в дополнительных крепежных элементах
Конструкция полистирольной изоляции предотвращает процесс конденсации на поверхности бачка и ослабляет вибрацию в строительной конструкции
Возможность установки кронштейна с переходом DG 1/2" для подключения сиденья-биде или бидетты
Двойной смыв, независимо регулируемый, с гигиеническим резервом
Подходит для установки пневматического или сенсорного смыва
Совместима со всеми кнопками управления Alcaplast
Возможность сервиса без использования инструментов
Подвод воды сзади/сверху посередине
Бачок сделан из одного фрагмента полипропилена, что обеспечивает его 100% герметичность
Крышка сервисного отверстия упрощает процесс монтажа и защищает от влаги и грязи
Монтажная глубина рукава регулируется в диапазоне 20–95 мм
Монтажная глубина 125 мм
Материал несущей конструкции: металл, обработанный порошковой краской
Область применения:
Для подвесных унитазов
Для монтажа к несущей стене или в гипсокартонную конструкцию
Для пола с толщиной стяжки 0–200 мм
Для установки подвесного унитаза с интервалом крепления 180 мм или 230 мм
Технические параметры:
Подвод воды к задней стенке бачка или сверху бачка осуществляется с помощью монтажных отверстий G1/2 "
Рабочий диапазон давления воды 0,05 – 0,8 MPa
Рекомендуемый диапазон давления воды 0,3 – 0,5 MPa
Большой смыв 6 – 9 l
Малый смыв 2,5 – 3,5 l
Стандартные настройки большого смыва 6 l
Стандартные настройки малого смыва 3 l
Гигиенический резерв 3 l
Объем воды в бачке 9 l
Несущая способность 400 kg
Производитель: Alca plast, s.r.o. Bratislavská 2846690 02 Břeclav Czech Republic (Чехия)
Импортер: ООО "АлцаПласт" Республика Беларусь, Минский р-н, промузел Колядичи, ул.Бабушкина 76, комн.194
Гарантийный срок – 2 года
-
Купить товар "Скрытая система инсталляции для гипсокартонаAlcaPlastАM101/1000 (Чехия)" вы можете в наших салонах в Минске, Бресте, Витебске, Гомеле, Гродно, Могилеве, Барановичах, Бобруйске, Борисове, Лиде, Мозыре, Молодечно, Пинске, Солигорске, Новополоцке, выбрать регион и заказать онлайн или по телефону 466.



